INTERIOR DESIGN THESIS (UST)
MY THESIS- Reviving the Filipino Culture through Appreciation of Performing Arts in the Interior Design of the Armed Forces of the Philippines Theater
Presenting... My thesis :))) woohooo!
I. passed. thesis. I seriously can't believe it. All I can say is I've never felt so proud of myself! :-)
63 plans, 6 months, no sleep, no "eat", no "bath", no social life. I SURVIVED. :)
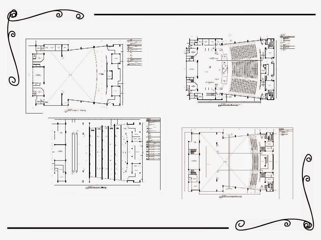
Thesis Title: Reviving the Filipino Culture through Appreciation of Performing Arts in the Interior Design of the Armed Forces of the Philippines Multi-Purpose Theater
My Interior Design thesis study for a.y. 2014-2015 first semester.
As a ballet dancer who uses the theater, this study was made to renew the theater design and make it suitable for the benefits of the theater performers who give life to every theater performance.
AREA 1 - The Armed Forces of the Philippines Multi-Purpose Theater Lobby (AFP Theater Lobby)
AREA 2 - The Armed Forces of the Philippines Multi-Purpose Theater VIP Lounge
AREA 3 - The Armed Forces of the Philippines Multi-Purpose Theater Female Star Dressing Room
AREA 4 - The AFP Theater House
This is what kept me busy during the first semester of my final year as a College student in the University of Santo Tomas. This is definitely an achievement for me, passing thesis and working on a VERY HUGE project knowing that my University is very strict and we're only given 6 months (eep, just one semester!).
This thesis for me is like doing two of the things I truly love -- interior design and ballet/performing on stage. I'm actually thinking of mastering theater design, as suggested by my professor, if ever I am taking up masterals. :)
If you want to view my thesis in HQ individually, you can visit my portfolio here.
By the way, if you're an interior design student and you happen to land on this blog of mine because you're doing your thesis, and also you're interested in working on theater design for your thesis, you can email me at raecaacbay@rocketmail.com if you want to have a copy of my thesis project.




























17 comments
Congratulations! That is amazing, and your designs for the theater look beautiful!
ReplyDeleteShea Lennon
Thank you very much Shea! :))
DeleteWow congrats!! :)
ReplyDeleteFlorals&Smiles
Twitter
Thanks!! (:
Deletehi my darling, congratulation!!!
ReplyDeletekiss
http://tr3ndygirl.com/
thank you dear! :D
DeleteCongrats Rae! Impressive work!
ReplyDelete♥♥♥
Jeanne
http://www.fashionmusingsdiary.com
Thank you so much Jeanne!~
DeleteWow so cool, congrats!
ReplyDeleteThank youuuu Krysten!~
DeleteCONGRATULATIONS Rae... I am so happy for you...this is wonderful xox ♡
ReplyDeleteawww. thank you so much Launna! :))
DeleteGreat job!
ReplyDeleteObsessed Fashion Blog
THANK YOUUUU! :)
DeleteThank you! :)
ReplyDeleteCongratulations!!! Great job!
ReplyDeletexoxo
Ramona
http://ramona-strikeapose.blogspot.ie
Rae this is so amazing! All the hard work paid off!
ReplyDelete